Адрес электронной почты защищен от спам-ботов. Для просмотра адреса в браузере должен быть включен Javascript.
Комплексные решения
в энергетике
Адрес электронной почты защищен от спам-ботов. Для просмотра адреса в браузере должен быть включен Javascript.
Комплексные решения
в энергетике
Консультация инженера
Заполните форму и получите бесплатную консультацию опытного инженера или помощь в подборе оборудования
Техническая информация
Особенности и преимущества
Габаритные размеры
| МОДЕЛЬ | Вт (мм) | ЧАС (мм) | Д (мм) |
|---|---|---|---|
| FTC-X 200 PLUS | 640 | 1260 | 1460 |
| FTC-X 270 PLUS | 640 | 1260 | 1460 |
| FTC-X 340 PLUS | 640 | 1260 | 1800 |
| FTC-X 410 PLUS | 640 | 1260 | 1800 |
| FTC-X 480 PLUS | 640 | 1260 | 2000 |
| FTC-X 550 PLUS | 640 | 1260 | 2000 |
| FTC-X 680 | 640 | 1260 | 2230 |
| FTC-X 760 | 640 | 1260 | 2230 |
| FTC-X 840 | 640 | 1260 | 2230 |
Технические детали
| ТЕХНИЧЕСКИЕ ХАРАКТЕРИСТИКИ | Ед. изм. | FTC-X 200 PLUS | FTC-X 270 PLUS | FTC-X 340 PLUS | FTC-X 410 PLUS | FTC-X 480 PLUS | FTC-X 550 PLUS | FTC-X 680 | FTC-X 760 | FTC-X 840 | |||||
|---|---|---|---|---|---|---|---|---|---|---|---|---|---|---|---|
| Тепловая мощность | |||||||||||||||
| Максимальная тепловая мощность | кВт | 230 | 300 | 380 | 450 | 530 | 605 | 680 | 760 | 840 | |||||
| Минимальная тепловая мощность | кВт | 32 | 40 | 50 | 60 | 65 | 65 | 90 | 105 | 115 | |||||
| Максимальная тепловая мощность при отоплении (80°C / 60°C) | кВт | 214 | 285 | 356 | 428,7 | 498 | 570 | 643 | 713 | 788 | |||||
| Минимальная тепловая мощность при отоплении (80°C / 60°C) | кВт | 23 | 31 | 39 | 44 | 55 | 62 | 70 | 84 | 93 | |||||
| Максимальная тепловая мощность при отоплении (50°C / 30°C) | кВт | 230 | 305 | 380 | 455 | 530 | 605 | 680 | 762 | 848 | |||||
| Минимальная тепловая мощность при отоплении (50°C / 30°C) | кВт | 26 | 35 | 43 | 49 | 61 | 69 | 78 | 93 | 102 | |||||
| КПД | |||||||||||||||
| КПД @ Рмакс. (80°C / 60°C) | % | 97,2 | 97,5 | 97,8 | 97,5 | 97,8 | 97,5 | 97,4 | 97,6 | 97,7 | |||||
| КПД @ Pмин. (80°C / 60°C) | % | 96,5 | 96,3 | 96,7 | 96,4 | 96,7 | 96,8 | 96,4 | 96,8 | 96,5 | |||||
| КПД @ Рмакс. (50°C / 30°C) | % | 104,2 | 104,5 | 104,2 | 104,3 | 104,2 | 104,1 | 104,3 | 104,2 | 104,5 | |||||
| КПД @ Pмин. (50°C / 30°C) | % | 107,2 | 107,3 | 107,4 | 107,3 | 107,3 | 107,5 | 107,4 | 107,5 | 107,6 | |||||
| КПД @ 30% (30°C) | % | 108,4 | 108,5 | 108,2 | 108,9 | 108,5 | 108,9 | 108,5 | 108,6 | 108,7 | |||||
| Контур ГВС | |||||||||||||||
| Диапазон регулирования температуры при использовании внешнего бака ГВС | °C | 10-65 | 10-65 | 10-65 | 10-65 | 10-65 | 10-65 | 10-65 | 10-65 | 10-65 | |||||
| Контур отопления | |||||||||||||||
| Максимальная температура для отопления | °C | 85 | 85 | 85 | 85 | 85 | 85 | 85 | 85 | 85 | |||||
| Объем воды | л | 20,5 | 24,8 | 28,9 | 35,46 | 36,9 | 47,15 | 48,6 | 53,3 | 58 | |||||
| Максимальное давление воды для отопления | бар | 6 | 6 | 6 | 6 | 6 | 6 | 6 | 6 | 6 | |||||
| Минимальное давление воды для отопления | бар | 1 | 1 | 1 | 1 | 1 | 1 | 1 | 1 | 1 | |||||
| Характеристики газа | |||||||||||||||
| Тип газа | - | G20-G31 | G20-G31 | G20-G31 | G20-G31 | G20-G31 | G20-G31 | G20-G31 | G20-G31 | G20-G31 | |||||
| Давление газа на входе (G20) | мбар | 20 | 20 | 20 | 20 | 20 | 20 | 20 | 20 | 20 | |||||
| Давление газа на входе (G31) | мбар | 37 | 37 | 37 | 37 | 37 | 37 | 37 | 37 | 37 | |||||
| Расход газа при максимальной производительности | Нм³/ч | 23,98 | 31,27 | 39,61 | 46,91 | 55,25 | 63,07 | 70,88 | 79,22 | 87,56 | |||||
| Расход газа при минимальной производительности | Нм³/ч | 3,34 | 4,17 | 5,21 | 6,25 | 6,78 | 6,78 | 9,38 | 10,95 | 11,99 | |||||
| Характеристики процесса горения | |||||||||||||||
| Температура дымовых газов при максимальной нагрузке (80/60 °C) | °C | 73,9 | 75,1 | 75,1 | 76,0 | 75,1 | 75,1 | 75,1 | 75,3 | 75,6 | |||||
| Температура дымовых газов при минимальной нагрузке (80/60 °C) | °C | 55,9 | 58,7 | 58,7 | 58,3 | 58,7 | 58,7 | 58,7 | 58,7 | 58,8 | |||||
| Температура дымовых газов при максимальной нагрузке (50/30 °C) | °C | 53,5 | 54,1 | 54,1 | 54,8 | 54,1 | 54,1 | 54,1 | 53,9 | 53,8 | |||||
| Температура дымовых газов при минимальной нагрузке (50/30 °C) | °C | 30,2 | 30,5 | 30,5 | 30,5 | 30,5 | 30,5 | 30,5 | 30,5 | 30,7 | |||||
| Объемный расход дымовых газов | кг/с | 0,1031 | 0,1291 | 0,16 | 0,175 | 0,198 | 0,261 | 0,254 | 0,2837 | 0,3134 | |||||
| Класс NOx (EN 15502-1+A1) | - | 6 | 6 | 6 | 6 | 6 | 6 | 6 | 6 | 6 | |||||
| Расход газа при максимальной производительности | Нм³/ч | 23,98 | 31,27 | 39,61 | 46,91 | 55,25 | 63,07 | 70,88 | 79,22 | 87,56 | |||||
| Расход газа при минимальной производительности | Нм³/ч | 3,34 | 4,17 | 5,21 | 6,25 | 6,78 | 6,78 | 9,38 | 10,95 | 12,00 | |||||
| Электрические характеристики | |||||||||||||||
| Электропитание | В/Гц | 230/50 | 230/50 | 230/50 | 230/50 | 230/50 | 230/50 | 230/50 | 230/50 | 230/50 | |||||
| Класс защиты | IP | X4D | X4D | X4D | X4D | X4D | X4D | X4D | X4D | X4D | |||||
| Потребление электроэнергии | W | 260 | 260 | 280 | 210 | 350 | 400 | 520 | 600 | 670 | |||||
| Значение тока используемого предохранителя | A | 6 | 6 | 6 | 6 | 6 | 6 | 6 | 6 | 6 | |||||
| Характеристики подключений к системе | |||||||||||||||
| Диаметр соединительной трубы для конденсата | Ø | 1/2" | 1/2" | 1/2" | 1/2" | 1/2" | 1/2" | 1/2" | 1/2" | 1/2" | |||||
| Диаметр подключения газопровода | Ø | 1 1/2" | 1 1/2" | 1 1/2" | 2" | 2" | 2" | 2" | 2" | 2" | |||||
| Диаметр подающей и обратной трубы контура отопления | Ø | 3" | 3" | 3" | 3" | 3" | 3" | 3" | 3" | 3" | |||||
| Общие характеристики | |||||||||||||||
| Вес нетто | кг | 240 | 266 | 300 | 336 | 392 | 396 | 430 | 452 | 474 | |||||
| Диаметр дымовой трубы | мм | 160 | 160 | 200 | 200 | 200 | 200 | 200 | 200 | 200 | |||||
| G 20 природный газ, G 31 LPG | |||||||||||||||
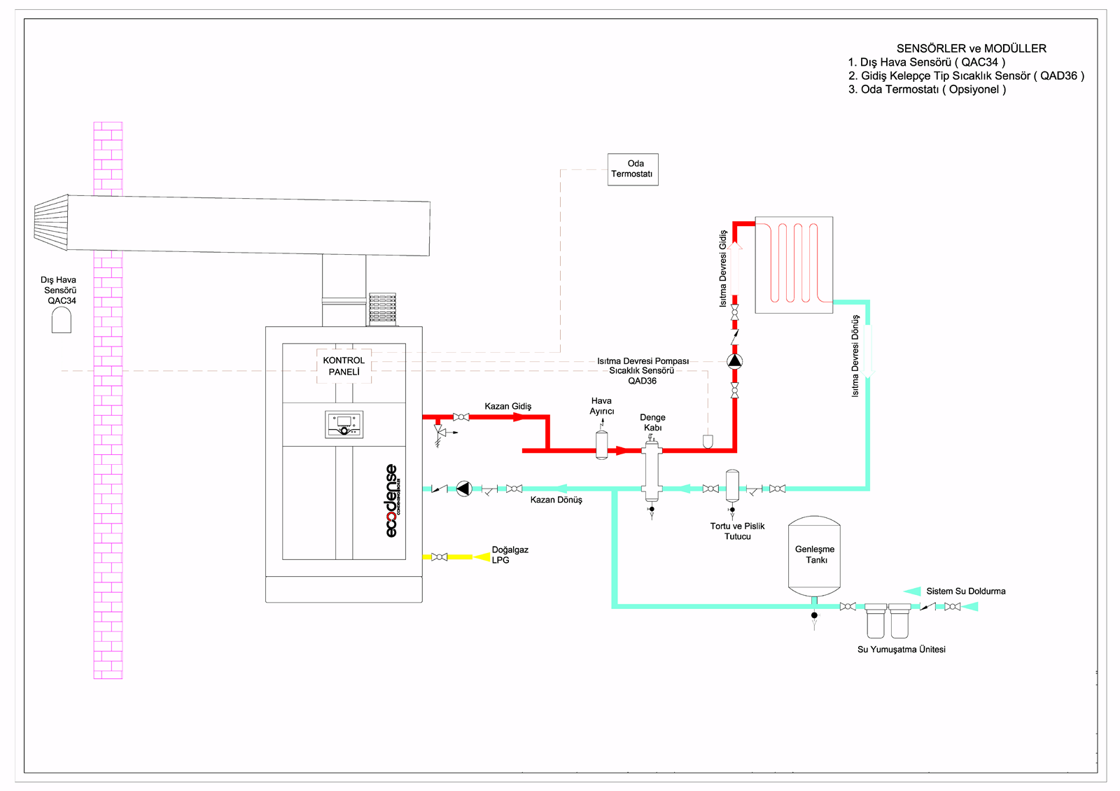
Блок-схема
ECODENSE FTC- X PLUS RADYATÖR DEVRE ŞEMASI
FTC-X PLUS - AKIŞ ŞEMASI
Сделаем все за вас
Есть заявка или проектная документация, но нет времени искать поставщика оборудования, самостоятельно сравнивать характеристики и вникать в тонкости и различия?
Наши опытные специалисты подберут всю необходимую комплектацию вашего объекта под ключ. Звоните или заполняйте заявку на обратный звонок, мы перезваниваем в течение нескольких минут.
Консультация инженера
Заполните форму и получите бесплатную консультацию опытного инженера или помощь в подборе оборудования